3285 Minnow Creek Drive
Hernando Beach, FL 34607

Listed at $649,000

Details

  • MLS# W7880140
  • Residential - Single Family
  • Status Active
  • 2 Bedrooms
  • 2 full Bathrooms
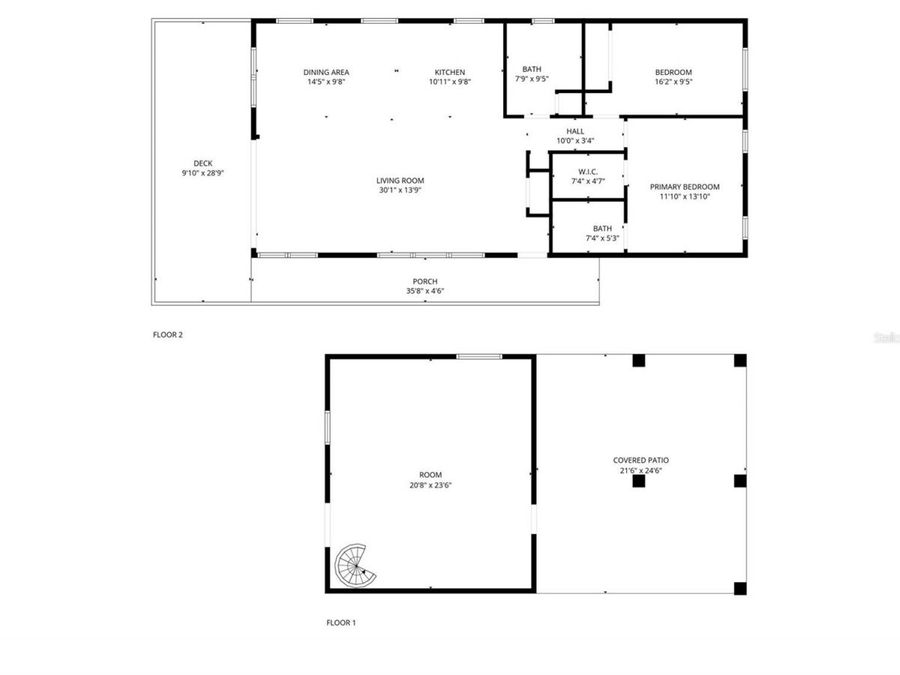
  • 1,248 Square Feet
  • 0.130 acres
  • Built in 1983
  • Local Schools

Description

Waterfront paradise! This fully renovated 2-bedroom, 2-bath stilt home offers modern coastal living on a deep-water canal just minutes from the Gulf. Every detail has been beautifully updated - simply move in and start living your waterfront dream. Step inside to discover engineered hardwood floors, a stunning chef's kitchen with soft-close wood cabinetry, granite countertops, a large island, stainless steel appliances, and a farm-style sink. The open-concept layout flows seamlessly into the living area, featuring hurricane-impact windows (2024) and a three-panel sliding glass door that opens to a 10-foot deck with peaceful canal, mangrove...read more and Gulf views. Enjoy two newly renovated bathrooms with custom tile showers, glass doors, and matching granite finishes. The primary suite features a walk-in closet, ensuite bathroom with rain showerhead and designer details throughout.Nearly everything is new (2024), air conditioning system 2024, insulation, bug-resistant siding, on-demand water heater, paint, ceiling fans, washer & dryer, staircase, and deck railing. The home also includes a new seawall cap, floating dock, and gangway - perfect for boating enthusiasts. Roof 2023. The first floor is ready for your personal touch, ideal for storage, a workshop, or future expansion, think gym, workshop, man cave. A charming spiral staircase leads up to the main living area, where a hatch door adds a touch of character. Located in a no-HOA neighborhood, this property offers freedom and flexibility - bring your boat, kayaks, or paddleboards to enjoy fishing, scalloping, relaxing with direct Gulf access in just five minutes! Close to the public boat ramp, marina, and popular local restaurants. Owner financing available. Whether youre seeking a full-time waterfront residence, vacation home, or investment property, this stunning remodel delivers the ultimate Florida coastal lifestyle.

Features

  • Dishwasher
  • Disposal
  • Dryer
  • Microwave
  • Range
  • Refrigerator
  • Tankless Water Heater
  • Washer
  • Central Air
  • Hardwood
  • Tile
  • Central, Electric, Heat Pump
  • 2.0 Stories
  • $6,038 Taxes
  • Public
  • Built in 1983
View All Features

Contact the Agent

Contact the Listing Agent
Disclaimer: All information deemed reliable but not guaranteed. All properties are subject to prior sale, change or withdrawal. Neither listing broker(s) or information provider(s) shall be responsible for any typographical errors, misinformation, misprints and shall be held totally harmless. Listing(s) information is provided for consumers personal, non-commercial use and may not be used for any purpose other than to identify prospective properties consumers may be interested in purchasing. Information on this site was last updated 04/15/2026. The listing information on this page last changed on 04/15/2026. The data relating to real estate for sale on this website comes in part from the Internet Data Exchange program of Delta Media Group MLS (last updated Wed 04/15/2026 12:07:16 AM EST) or Miami MLS (last updated Tue 04/14/2026 11:58:36 PM EST) or Stellar MLS (last updated Tue 04/14/2026 11:59:18 PM EST) or Daytona MLS (last updated Tue 04/14/2026 11:36:46 PM EST) or Tallahassee MLS (last updated Tue 04/14/2026 10:48:06 PM EST) or Northeast Florida MLS (last updated Tue 04/14/2026 11:58:43 PM EST) or My State MLS (last updated Tue 04/14/2026 11:30:10 PM EST) or Florida Keys MLS (last updated Tue 04/14/2026 8:30:59 PM EST). Real estate listings held by brokerage firms other than Adams Cameron & Co. REALTORS may be marked with the Internet Data Exchange logo and detailed information about those properties will include the name of the listing broker(s) when required by the MLS. All rights reserved.

mls logo
Listing data and photos distributed by MLSGRID
Member Participants (and their affiliated licensees, if applicable) shall indicate on their websites that IDX information is provided exclusively for consumers’ personal non-commercial use, that it may not be used for any purpose other than to identify prospective properties consumers may be interested in purchasing, that the data is deemed reliable but is not guaranteed by MLS GRID, and that the use of the MLS GRID Data may be subject to an end user license agreement prescribed by the Member Participant’s applicable MLS if any and as amended from time to time. MLS GRID may, at its discretion, require use of other disclaimers as necessary to protect Member Participant, and/or their MLS from liability.
Based on information submitted to the MLS GRID. All data is obtained from various sources and may not have been verified by broker or MLS GRID. Supplied Open House Information is subject to change without notice. All information should be independently reviewed and verified for accuracy. Properties may or may not be listed by the office/agent presenting the information.



Privacy Policy / DMCA Notice / ADA Accessibility

Property Image 1
Property Image 2
Property Image 3
Property Image 4
Property Image 5
Property Image 6
Property Image 7
Property Image 8
Property Image 9
Property Image 10
Property Image 11
Property Image 12
Property Image 13
Property Image 14
Property Image 15
Property Image 16
Property Image 17
Property Image 18
Property Image 19
Property Image 20
Property Image 21
Property Image 22
Property Image 23
Property Image 24
Property Image 25
Property Image 26
Property Image 27
Property Image 28
Property Image 29
Property Image 30
Property Image 31
Property Image 32
Property Image 33
Property Image 34
Property Image 35
Property Image 36
Property Image 37
Property Image 38
Property Image 39
Property Image 40
Property Image 41
Property Image 42
Property Image 43
Property Image 44
Property Image 45
Property Image 46
Property Image 47
Property Image 48
Property Image 49
Property Image 50
Property Image 51
Property Image 52
Property Image 53
Property Image 54
Property Image 55
Property Image 56
Property Image 57
Property Image 58
Property Image 59
Property Image 60
Property Image 61
Property Image 62
Property Image 63
Property Image 64
Property Image 65
Property Image 66
Property Image 67
Property Image 68
Property Image 69
Property Image 70
Property Image 71

All Property Features

  • Property Type: Residential - Single Family
  • Additional Rooms: Inside Utility
  • Appliances: Dishwasher, Disposal, Dryer, Microwave, Range, Refrigerator, Tankless Water Heater, Washer
  • Community Features: Golf Carts OK, Restaurant
  • Cooling: Central Air
  • Days on Site: 169
  • Directions: From US 19 at Spring Hill Drive Turn west on Osowa Blvd, right on Shoal Line Blvd, left on Caliente St, Right onto Maplewood Dr, which becomes Eagle Nest Dr, Left onto Minnow Creek Dr.
  • Exterior: Cedar, Frame
  • Exterior Features: Balcony, Sliding Doors
  • Flood Zone Code: AE
  • Flooring: Hardwood, Tile
  • Foundation: Stilt/On Piling
  • Frontage Canal Salt: 60
  • Heating: Central, Electric, Heat Pump
  • Home Style: Elevated
  • Home Warranty Y/N: No
  • Interior Features: Ceiling Fans(s), Kitchen/Family Room Combo, Living Room/Dining Room Combo, Open Floorplan, Solid Surface Counters, Solid Wood Cabinets, Stone Counters, Thermostat, Walk-In Closet(s)
  • Listing Terms: Cash, Conventional, FHA, Owner Financing
  • Lot Description: Flood Insurance Required, FloodZone, In County, Level, Near Marina, Street Dead-End, Paved
  • Lot Dimensions: 0.13
  • Lot Size: 0.13 Acres
  • Other Structures: Storage
  • Ownership: Fee Simple
  • Parking: Covered, Basement
  • Parking Notes: Covered, Basement
  • Patio/Porch: Deck, Rear Porch
  • Pets Allowed: Yes
  • Property Attached Y/N: No
  • Property Sub-Type: Single Family Residence
  • Roof Type: Metal
  • Sewer: Public Sewer
  • Showing Instructions: Supra Lock Box, Appointment Only, ShowingTime
  • Special Sale Provisions: None
  • Special View Info: Water
  • Stories: 2.0
  • Taxes: $6,038
  • Utilities: BB/HS Internet Available, Cable Available, Electricity Connected, Fire Hydrant, Sewer Connected, Water Connected
  • Vegetation: Mature Landscaping
  • Water: Public
  • Water Access: Canal - Saltwater, Gulf/Ocean
  • Water Access Y/N: Yes
  • Waterfront Features: Canal - Saltwater, No Wake Zone, Sailboat Water, Seawall - Concrete
  • Water View: Canal, Gulf/Ocean - Partial
  • Windows: Blinds, Storm Window(s)
  • Year Built: 1983
  • Zoning: R1B