15104 County Road 48
Astatula, FL 34705

Listed at $1,050,000

Details

  • MLS# OM718333
  • Residential - Single Family
  • Status Active
  • 4 Bedrooms
  • 4 full Bathrooms
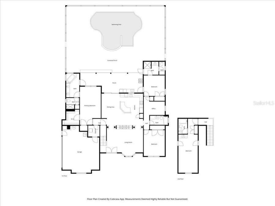
  • 2,615 Square Feet
  • 12.100 acres
  • Built in 2004
  • Local Schools

Description

Welcome to a truly rare custom-built estate offering strength, privacy, and lifestyle versatility on 12.1 acres in beautiful Astatula. Built as a forever home with exceptional craftsmanship, this 4-bedroom, 4-bathroom residence delivers a level of durability and quality that is increasingly hard to find.Constructed with solid poured concrete block and full rebar reinforcement throughout, this home was designed for long-term peace of mind. A premium 26-gauge metal roof and real wood roof decking further highlight the commitment to lasting construction.Inside, you'll find approximately 2,600 square feet of thoughtfully designed living space...read more featuring quality finishes such as travertine window sills, high-end cabinetry, and a whole-home built-in speaker system, extending even into the bathrooms. The spacious primary suite includes a double-head shower, and the home is fully plumbed for gas, offering added flexibility for cooking and outdoor living.Step outside to enjoy the best of Florida living with a large screened-in pool and expansive deck area, ideal for relaxing or entertaining. The land is equally impressive, featuring a beautiful stocked pond, wide-open acreage, and multiple fenced areas ready for animals, recreation, or future expansion.One of the propertys most standout features is the massive 40x60 steel pole barn, built with exceptional height and heavy-duty construction-perfect for RVs, boats, workshops, equipment storage, or equestrian use.This is more than just a home-its a private acreage retreat offering unmatched infrastructure, privacy, and potential in a highly desirable Lake County location.Schedule your private showing today and experience the strength, space, and lifestyle that make this property truly one of a kind.

Features

  • Dishwasher
  • Disposal
  • Dryer
  • Gas Water Heater
  • Microwave
  • Range
  • Refrigerator
  • Washer
  • Central Air
  • Brick
  • Carpet
  • Ceramic Tile
  • Hardwood
  • Heat Pump
  • 2.0 Stories
  • $5,079 Taxes
  • Well
  • Built in 2004
View All Features

Contact the Agent

Contact the Listing Agent
Disclaimer: All information deemed reliable but not guaranteed. All properties are subject to prior sale, change or withdrawal. Neither listing broker(s) or information provider(s) shall be responsible for any typographical errors, misinformation, misprints and shall be held totally harmless. Listing(s) information is provided for consumers personal, non-commercial use and may not be used for any purpose other than to identify prospective properties consumers may be interested in purchasing. Information on this site was last updated 04/17/2026. The listing information on this page last changed on 04/17/2026. The data relating to real estate for sale on this website comes in part from the Internet Data Exchange program of Delta Media Group MLS (last updated Fri 04/17/2026 5:49:14 AM EST) or Miami MLS (last updated Fri 04/17/2026 12:29:02 AM EST) or Stellar MLS (last updated Fri 04/17/2026 1:59:06 AM EST) or Daytona MLS (last updated Thu 04/16/2026 11:36:54 PM EST) or Tallahassee MLS (last updated Thu 04/16/2026 10:49:44 PM EST) or Northeast Florida MLS (last updated Fri 04/17/2026 12:18:57 AM EST) or My State MLS (last updated Thu 04/16/2026 11:30:10 PM EST) or Florida Keys MLS (last updated Fri 04/17/2026 12:28:56 AM EST). Real estate listings held by brokerage firms other than Adams Cameron & Co. REALTORS may be marked with the Internet Data Exchange logo and detailed information about those properties will include the name of the listing broker(s) when required by the MLS. All rights reserved.

mls logo
Listing data and photos distributed by MLSGRID
Member Participants (and their affiliated licensees, if applicable) shall indicate on their websites that IDX information is provided exclusively for consumers’ personal non-commercial use, that it may not be used for any purpose other than to identify prospective properties consumers may be interested in purchasing, that the data is deemed reliable but is not guaranteed by MLS GRID, and that the use of the MLS GRID Data may be subject to an end user license agreement prescribed by the Member Participant’s applicable MLS if any and as amended from time to time. MLS GRID may, at its discretion, require use of other disclaimers as necessary to protect Member Participant, and/or their MLS from liability.
Based on information submitted to the MLS GRID. All data is obtained from various sources and may not have been verified by broker or MLS GRID. Supplied Open House Information is subject to change without notice. All information should be independently reviewed and verified for accuracy. Properties may or may not be listed by the office/agent presenting the information.



Privacy Policy / DMCA Notice / ADA Accessibility

Property Image 1
Property Image 2
Property Image 3
Property Image 4
Property Image 5
Property Image 6
Property Image 7
Property Image 8
Property Image 9
Property Image 10
Property Image 11
Property Image 12
Property Image 13
Property Image 14
Property Image 15
Property Image 16
Property Image 17
Property Image 18
Property Image 19
Property Image 20
Property Image 21
Property Image 22
Property Image 23
Property Image 24
Property Image 25
Property Image 26
Property Image 27
Property Image 28
Property Image 29
Property Image 30
Property Image 31
Property Image 32
Property Image 33
Property Image 34
Property Image 35
Property Image 36
Property Image 37
Property Image 38
Property Image 39
Property Image 40
Property Image 41
Property Image 42
Property Image 43
Property Image 44
Property Image 45
Property Image 46
Property Image 47
Property Image 48
Property Image 49
Property Image 50
Property Image 51
Property Image 52
Property Image 53
Property Image 54
Property Image 55
Property Image 56

All Property Features

  • Property Type: Residential - Single Family
  • Additional Rooms: Bonus Room, Inside Utility
  • Appliances: Dishwasher, Disposal, Dryer, Gas Water Heater, Microwave, Range, Refrigerator, Washer
  • Barn Features: Horse Barn, Pole Barn
  • Cooling: Central Air
  • Days on Site: 67
  • Directions: Driving Directions (from Floridaâ??s Turnpike â?? Exit 285)1. Take Floridaâ??s Turnpike to Exit 285 for FL-19 toward Howey-in-the-Hills / Astatula.2. Turn left onto FL-19 N (Lake County Scenic Trail).3. Continue on FL-19 N for approximately 6.5 miles.4. T
  • Exterior: Block, Stucco
  • Exterior Features: Private Mailbox, Rain Gutters
  • Fenced: Yes
  • Fencing: Fenced, Wire, Wood
  • Fireplace: Gas, Living Room
  • Fireplace Y/N: Yes
  • Flood Zone Code: X
  • Flooring: Brick, Carpet, Ceramic Tile, Hardwood
  • Foundation: Slab
  • Garage: 2 car attached
  • Garage Dimensions: 20x24
  • Heating: Heat Pump
  • Home Style: Colonial
  • Home Warranty Y/N: No
  • Interior Features: Built-in Features, Cathedral Ceiling(s), Ceiling Fans(s), Eat-in Kitchen, High Ceilings, Primary Bedroom Main Floor, Solid Wood Cabinets, Stone Counters, Vaulted Ceiling(s), Walk-In Closet(s), Window Treatments
  • Listing Terms: Cash, Conventional, FHA
  • Lot Description: Cleared, In County, Landscaped, Level, Pasture, Unincorporated, Zoned for Horses
  • Lot Dimensions: 12.1
  • Lot Size: 12.10 Acres
  • Number of Septics: 1
  • Number of Stalls: 2
  • Number of Stalls: 2
  • Number of Wells: 1
  • Other Equipment: Irrigation Equipment
  • Other Structures: Barn(s), Shed(s)
  • Ownership: Fee Simple
  • Parking: Garage Door Opener, Garage Faces Side, Other, Oversized, RV Carport
  • Parking Notes: Garage Door Opener, Garage Faces Side, Other, Oversiz
  • Patio/Porch: Front Porch, Patio, Screened, Wrap Around
  • Pool: Deck, Gunite, Heated, In Ground, Lighting, Screen Enclosure
  • Property Attached Y/N: No
  • Property Sub-Type: Single Family Residence
  • Roof Type: Metal
  • Sewer: Septic Tank
  • Showing Instructions: ShowingTime
  • Spa: In Ground
  • Special Sale Provisions: None
  • Stories: 2.0
  • Swimming Pool: Yes
  • Taxes: $5,079
  • Utilities: Electricity Connected, Propane
  • Vegetation: Mature Landscaping, Trees/Landscaped
  • Water: Well
  • Water Access Y/N: No
  • Windows: Window Treatments
  • Year Built: 2004
  • Zoning: A